︎
Nadia Kassem
Projekte
Profil
Kontakt
Schanzenhub
Way to Water
Schrebergarten intensiv
Vandretur
Conhexion
Nadia Kassem
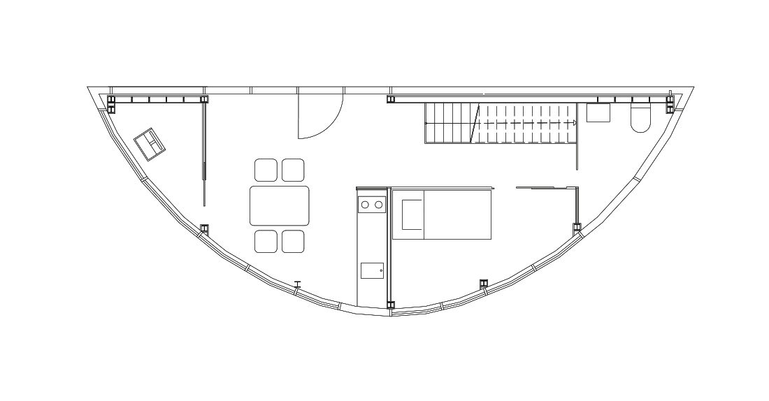
The other type of housing is for families or for a shared apartment with two floors. This follows the same standards as the first housing type only with an additional bathroom and multiple bedrooms.
Projekte
Profil
Kontakt
Schanzenhub
Way to Water
Schrebergarten intensiv
Vandretur
Conhexion
Impressum
Datenschutz