
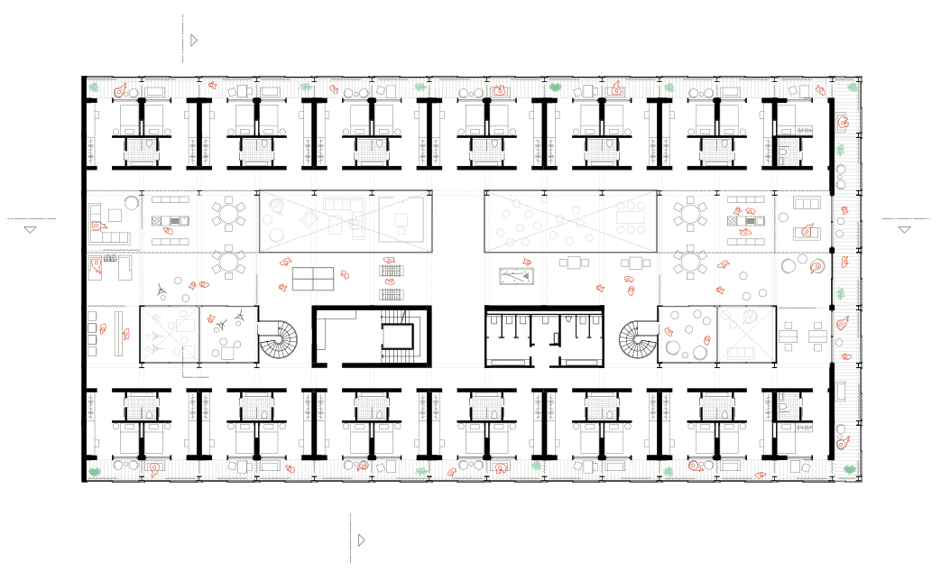
Temporäres Wohnen
Das dritte Obergeschoss wandelt sich in Wohnschotten für Nomaden und Pendler:innen um und ist als temporäres Wohnen konzipiert.Von den Wohnungen aus gibt es eine Anbindung an einen Außenbereich, der als Erweiterung des Wohnbereichs fungieren kann.
Auch hier dient die Mitte als Gemeinschaftsfläche, die sich von dem „mein/dein“ - Denken entfernt.