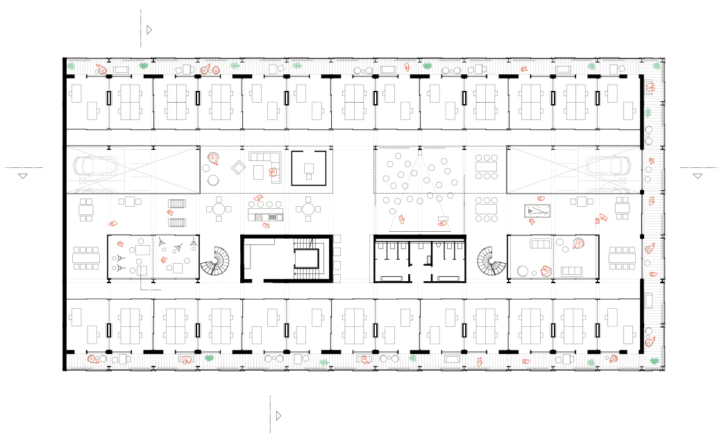
Co-Working
Im zweiten Obergeschoss befinden sich mehrere Arbeitsplätze, die man flexibel öffnen und schließen kann. Die Mitte wird durch mehrere Gemeinschaftsangebote bespielt. Durch die Lufträume wird eine Kommunikation untereinander, aber auch Blickbezüge zu der Mobilität konzipiert. Eine umschließende Außenterrasse sorgt für eine Sicht auf das Stadtviertel und um zu Verweilen.