︎
Nadia Kassem
Projekte
Profil
Kontakt
Schanzenhub
Way to Water
Schrebergarten intensiv
Vandretur
Conhexion
Nadia Kassem
Mobilität
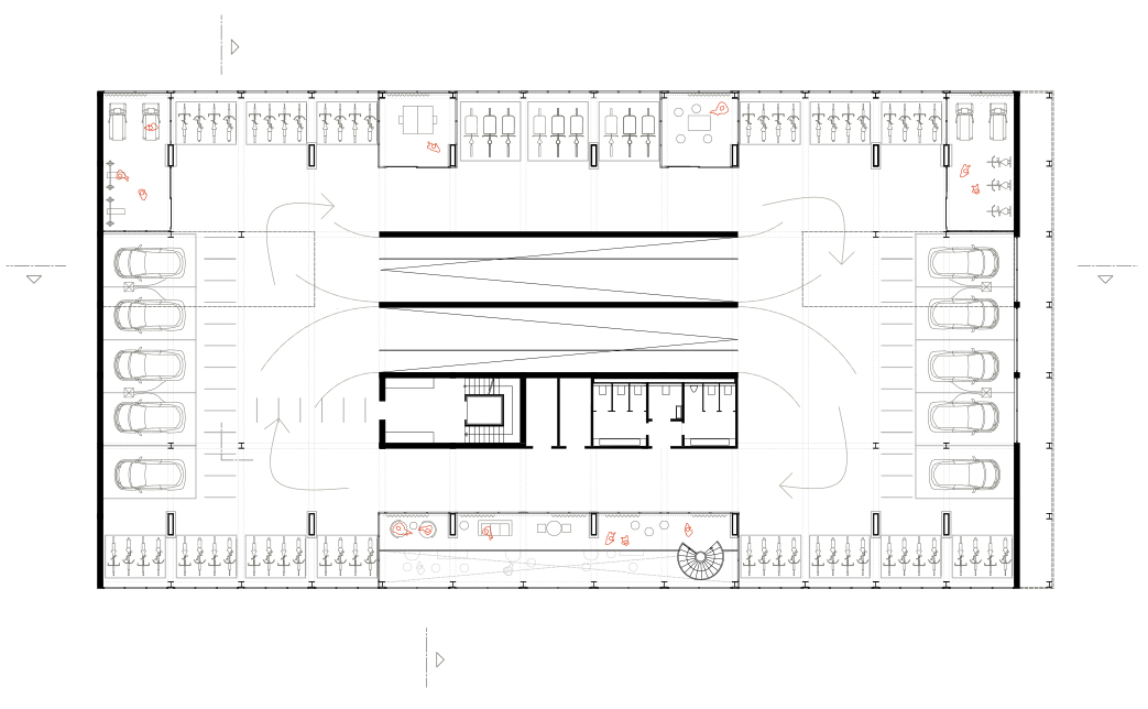
Im ersten Obergeschoss wird das Mobilitätsangebot weitergeführt und durch kleine öffentliche Räume durchbrochen, was für eine Durchmischung von Gemeinschaft und Mobilität sorgt.
Projekte
Profil
Kontakt
Schanzenhub
Way to Water
Schrebergarten intensiv
Vandretur
Conhexion
Impressum
Datenschutz